Ďalšie ukážky z našej práce — rodinné domy, rekreačné objekty, interiéry a nábytok na mieru.
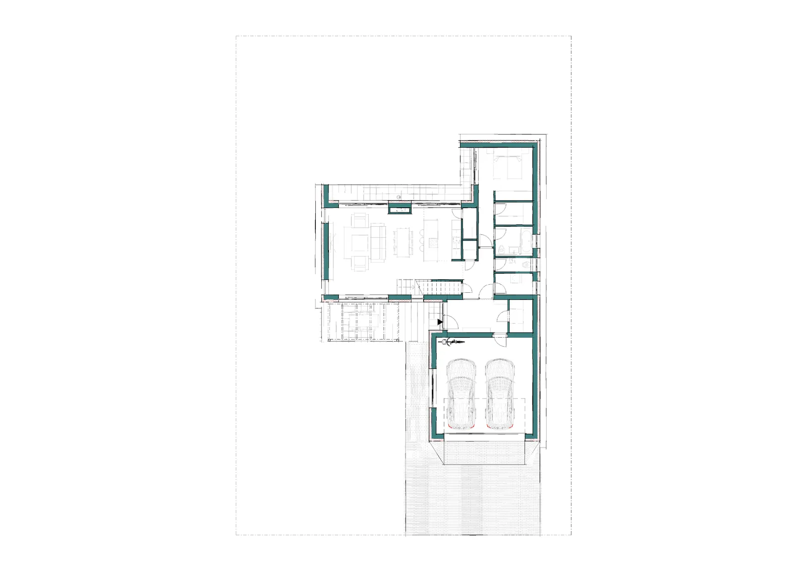
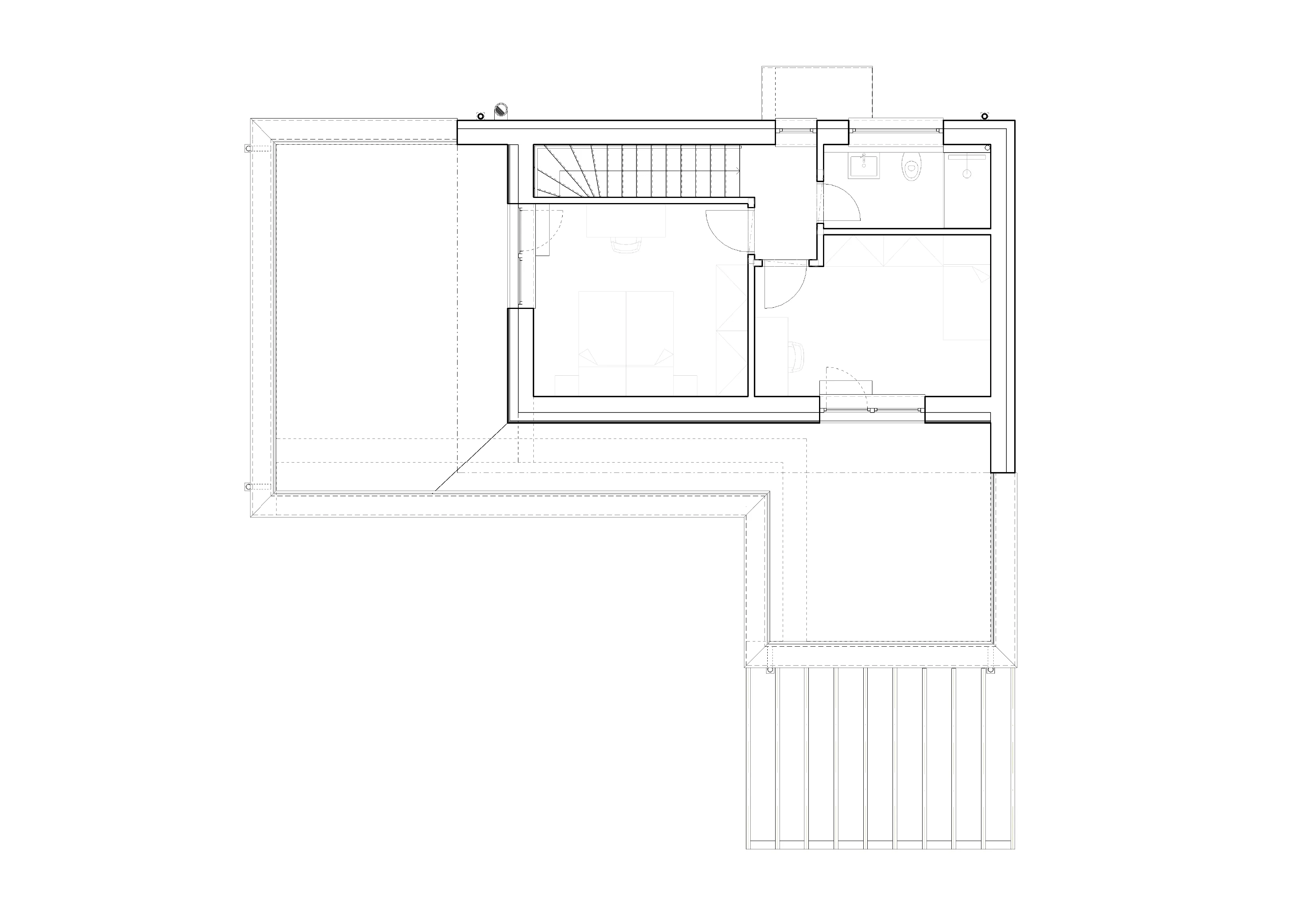
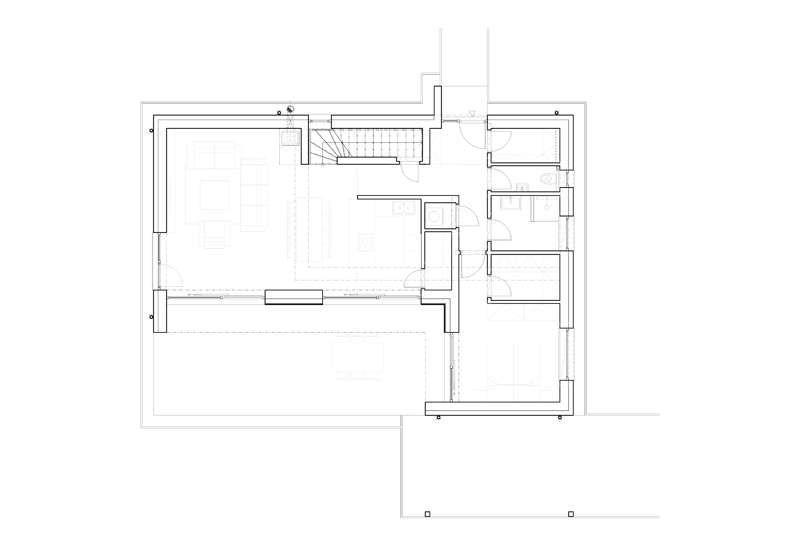
Poschodový rodinný dom pre štvorčlennú rodinu na rovinatom pozemku. Na prízemí denná zóna s kuchyňou, obývačkou a dvojgarážou, na poschodí súkromná oddychová časť so spálňami a kúpeľňami.
Rekreačná chata pri Vojkanskom jazere. Dvojpodlažný objekt s plochou strechou, presklenými fasádami na juh a čiastočne prestrešenou terasou. Poschodie s izbami pre hostí a strešnou terasou. Biele omietky v kombinácii s dreveným obkladom.